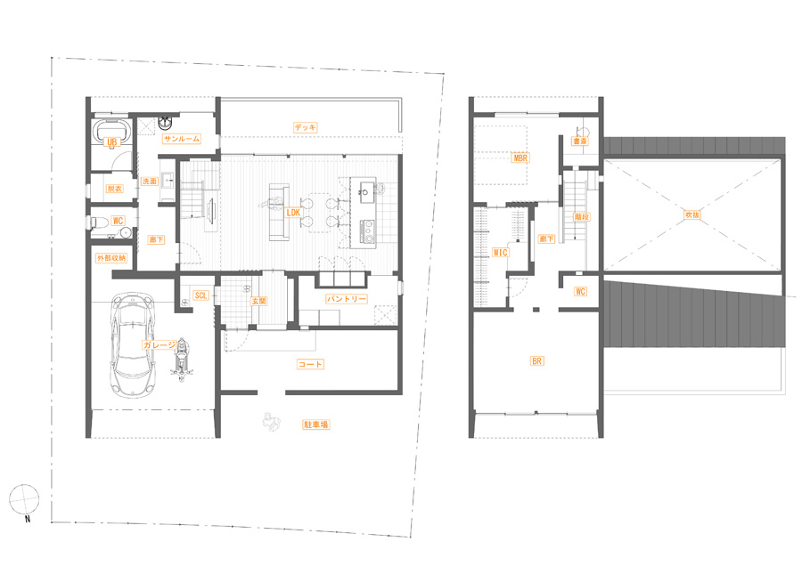
![]() 2016.2.28 完成 ![]() ![]() ![]() オリジナルキッチン クライアントの強い希望で天板は高級人造大理石フィオレストーンジュエルブラックを使っています。 ![]() 鉄骨階段 ![]() ネコちゃんが遊べるようにいくつかの工夫をしています。 喜んでもらえるかな。 ![]() 本棚 クライアントの好きな漫画が並ぶ予定。 ![]() 夫婦寝室 ![]() 子供部屋です。将来的にロフトを作るために天井を高くしています。 ![]() 洗面所 ![]() サンルーム ![]() 家の裏側 ![]() 〜ここからは施工中の写真〜 ![]() 2016.2.20 二階の床塗装のお手伝いをしてきました。いい感じの色になったよー。 ![]() 玄関 大きなニッチには写真を飾る予定。 ![]() ![]() 2016.2.9 パテ処理して内部仕上げ工事中。 ![]() 2016.2.2 木部をチョコレート色に塗装工事中。 ![]() 太陽光パネルを屋根に上げています。 ![]() 2016.1.30 大工工事も今週で終わる。これから仕上げ工事が進んでいきます。 ![]() コートの外壁張り ![]() 壁面埋め込みの本棚 工事期間中は大工さんの工具置き場さ。 ![]() 2016.1.26 階段上部の吹き抜けを利用してキャットウォークを作りました。 ネコ用窓とのぞき穴もあるよ。 ![]() 外壁サイディング張り ![]() 2016.1.22 寝室のボード張り 奥に見えるのがご主人のこもりスペース。 ![]() 2016.1.5 下地工事中 新年から大工さんが二人体制で進んでいるようで、かなり家らしくなってきました。 壁のボード張ったらよりリビング天井の美しさがわかってもらえるはず。お楽しみにー。 ![]() 2015.12.16 フローリング張り 奥さんナイスチョイス!いい感じのフローリングだ。 ![]() 2015.11.25 クライアントの強い希望で断熱にもこだわっています。 壁で見えなくなっちゃうのがもったいないくらい。 ![]() 2015.11.7 床暖房敷き込み中 ![]() 2015.10.28 7mの大開口サッシにガラスが入りました。高性能ハイブリッド窓サーモスXです。 ![]() 2015.10.23 お風呂到着したよー。 ![]() 2015.10.7 クライアントとキッチンフェアデート。 二度見してしまうほどの大きい食洗機。でかすぎる。。。 ![]() 2015.9.19 屋根板金工事 奥さんチョイスで緑と白だよーん。 周囲の家の屋根と見比べても全然意味合いの違う不思議な家だってのがよくわかるね。 ![]() 2015.9.16 大工工事 ![]() 屋根防水工事 ![]() ![]() 2015.9.14 上棟 昨日、上棟式を終えて再び静かになった現場へ行ってきました。 リビングの大開口と天井の構造体がステキすぎる。ぷぷぷ。 ![]() 2015.9.11 土台敷き 素晴らしい仕事してくれそうな大工さんに挨拶をしてきた。ケガをしないようにがんばっていただきたい。 ![]() 2015.9.8 13日上棟まであと数日しかないけど台風が来ている。土台敷き間に合うのかな? ![]() 2015.9.7 給排水配管工事中 ![]() 2015.9.5 自分で言うのもなんだけど、建物の配置かなりいい感じ。大工さんが入るのはいつかな。 ![]() 2015.8.31 脱型 ![]() 2015.8.28 この家には玄関前にコートがある。 まわりが壁に囲まれた空しか見えないような簡素なコートにしちゃったらステキじゃないかな。 クライアントに提案してみよっと。 ![]() 2015.8.27 基礎立ち上がり型枠施工中 ![]() 2015.8.26 基礎工事 24歳の頃に固まってない生コンに足をつっこんで左官屋さんに迷惑をかけたことがあります。 ![]() 2015.8.25 続・配筋工事 来週はクライアントとカーテン屋ぶらりデートの予定。 ![]() 2015.8.20 基礎型枠 週末に外壁とサッシの色を決める予定です。 ![]() 2015.8.12 すき取り ![]() 2015.8.1 手のひらサイズ1/200モデル ![]() 2015.7.4 地鎮祭 たくさんの人が集まっての地鎮祭なのにちょっとしか参加できなかった(T-T)がびーん ![]() 2015.5.18 実施設計中 これが僕の「仕事」です。 ![]() ![]() ![]() ![]() 太陽光をのせる予定です ![]() ![]() ![]() ![]() ![]() ![]() ![]() ![]() 2014.10.3 土地調査 |